Park1538 Gwangyang – Dấu ấn thép trong không gian văn hóa

Admin

Tin Hay Nhà Đất trên

+13

Giữa lòng thành phố công nghiệp – nơi gắn liền với ngành thép Hàn Quốc –Park1538 Gwangyanghiện lên như một nốt nhạc mềm giữa những khối kim loại khô cứng. Dự án do UnSangDong Architects phối hợp cùng POSCO A&C thực hiện, lấy cảm hứng từ chính ý nghĩa của “Gwangyang” – “Gwang” là ánh sáng, “Yang” là mặt trời. Công trình không chỉ là không gian văn hóa mà còn là nơi ánh sáng và thép hòa quyện, kể câu chuyện về sự sáng tạo và tinh thần cộng đồng.

THÔNG TIN DỰ ÁN
  • Tên công trình: Park1538 Gwangyang
  • Địa điểm: Thành phố Gwangyang, Jeollanam-do, Hàn Quốc
  • Diện tích: 8.569 m²
  • Đơn vị thiết kế: UnSangDong Architects, POSCO A&C
  • Năm hoàn thành: 2025
  • Nhiếp ảnh: Sergio Pirrone

Ý tưởng thiết kế Park1538 Gwangyang

Park1538 là cuộc đối thoại giữa vật liệu công nghiệpcảm xúc con người. Ánh sáng xuyên qua các mảng thép cong, tạo nên nhịp điệu mềm mại trên bề mặt kim loại, biến thép cứng nhắc thành ngôn ngữ kiến trúc sống động. Đây cũng là cách dự án kết nối quá khứ công nghiệp với hiện tại văn hóa, mang lại trải nghiệm độc đáo cho cộng đồng.

Toàn cảnhh Park1538 Gwangyang tại Hàn Quốc _ Ảnh: Sergio Pirrone.

Giải pháp kiến trúc nổi bật Park1538 Gwangyang

Nhóm thiết kế đã kết hợp công nghệ mô phỏng 3Dthiết kế tích hợp, đảm bảo từng sườn thép đều vừa thẩm mỹ vừa bền vững.
Hơn 4.400 tấn thép PosMAC được sử dụng, cho phép tạo hình khối bất đối xứng và đường cong phức tạp – một minh chứng cho sức mạnh của vật liệu và sự tinh tế trong thiết kế.
Các không gian mở, phòng triển lãm công xôn và giếng trời tạo sự liền mạch, mang ánh sáng tự nhiên len lỏi khắp công trình.

Park1538 Gwangyang - Mặt đứng uốn cong ấn tượng _ Ảnh: Sergio Pirrone.

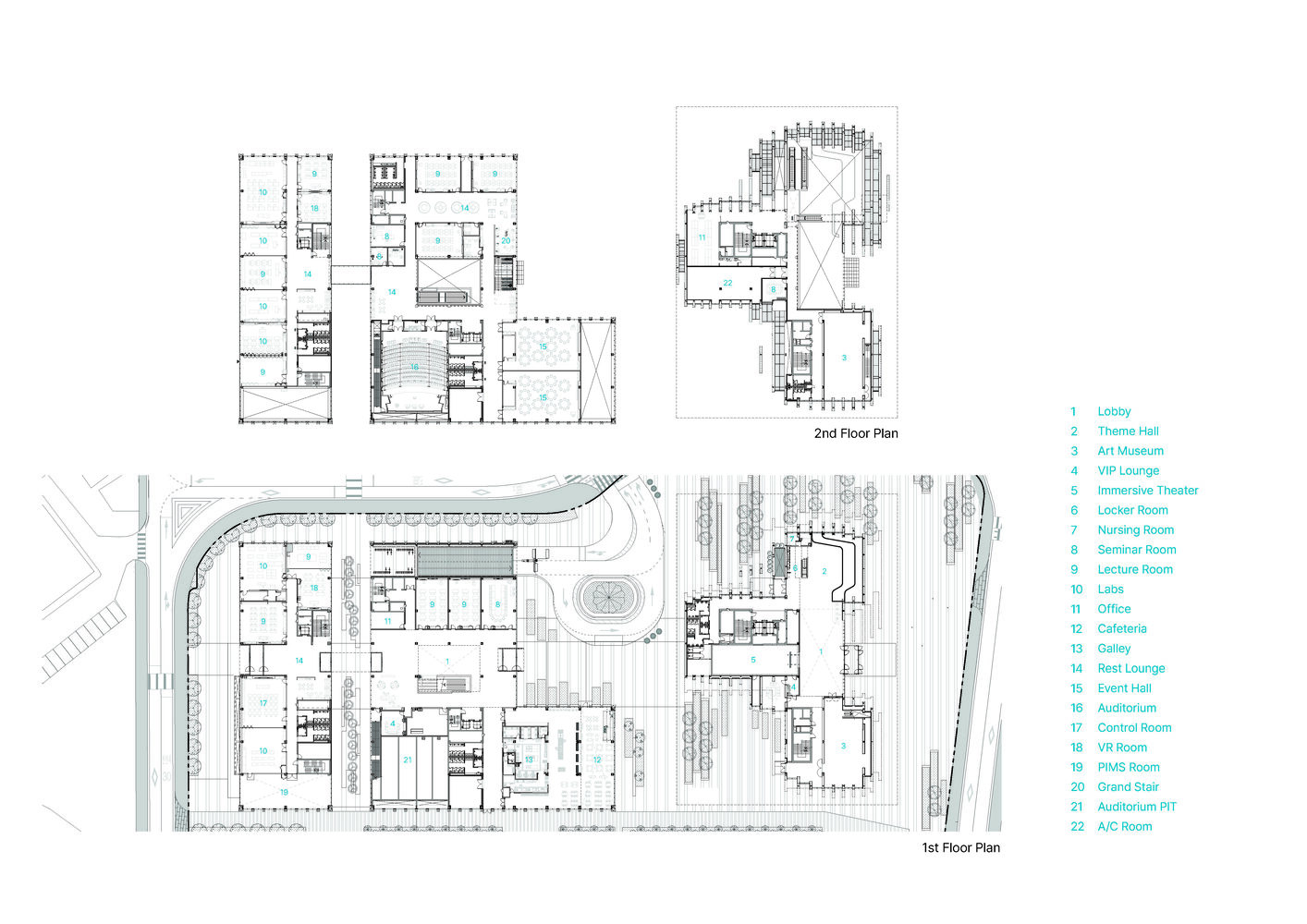
Không gian chức năng Park1538 Gwangyang

Không gian của Park1538 được tổ chức theo trục dọc ánh sáng, tạo nên hành trình trải nghiệm liền mạch, nơi mỗi bước chân là một lớp cảm xúc mới – từ quảng trường công cộng đến khu triển lãm và trung tâm giáo dục.
  • Tầng trệt: Đóng vai trò là quảng trường mở, kết nối công trình với đời sống đô thị Gwangyang. Không gian này được phủ thép phản quang, cho phép ánh sáng tự nhiên biến đổi liên tục trong ngày. Đây cũng là nơi diễn ra các hoạt động cộng đồng – một điểm gặp gỡ giữa công nghiệp và văn hóa.
  • Tầng ba: Là khối triển lãm nổi, nổi bật với kết cấu thép uốn cong mềm mại và hệ ánh sáng xuyên suốt. Không gian được tổ chức như một “dòng chảy ánh sáng”, dẫn dắt người tham quan qua thị giác mang đậm tính giàu biểu cảm và nghệ thuật.
  • Khu trung tâm giáo dục: Được thiết kế quanh giếng trời lớn, kết hợp cầu thang xoắn làm trục kết nối các tầng. Ánh sáng được điều tiết tinh tế qua lớp lam thép, mang lại cảm giác vừa mở vừa ấm, tượng trưng cho dòng chảy tri thức và kết nối cộng đồng.

    Sảnh chính ngập tràn ánh sáng tự nhiên, không gian mở và thiết kế hiện đại _ Ảnh: Sergio Pirrone.

Không gian triển lãm tương tác của Park1538 Gwangyang _ Ảnh: Sergio Pirrone.

Park1538 Gwangyang là dấu ấn thép trong văn hóa, nơi công nghệ, nghệ thuật và thiên nhiên gặp nhau. Thép tái chế và cảnh quan xanh tái hiện ký ức công nghiệp, biến nơi đây thành không gian sống động, truyền cảm hứng sáng tạo và kết nối cộng đồng.
Một công trình vừa mang tính biểu tượng, vừa là nơi trải nghiệm văn hóa đầy cảm xúc.






Nguồn: Archdaily

Dành cho bạn

Bình luận (0)


banner

banner
banner
banner
logo

CÔNG TY TNHH TIN HAY NHÀ ĐẤT

Giấy phép: MST: 0315812728

Email: info@tinhaynhadat.vn

Điện thoại: 0828636678

Địa chỉ: 23 Cửu Long, Phường Tân Sơn Hòa, TP.HCM

Chịu trách nhiệm nội dung: CÔNG TY TNHH TIN HAY NHÀ ĐẤT

hợp tác truyền thông và quảng cáo

Email: info@tinhaynhadat.vn

Điện thoại: 0828636678

Địa chỉ: 23 Cửu Long, Phường Tân Sơn Hòa, TP.HCM

(Để tránh hiểu lầm là spam xin hãy nêu rõ chi tiết khi liên hệ chat lần đầu)