M.Casa – Nếp nhà Việt giữa hẻm nhỏ Sài Gòn

Admin

Tin Hay Nhà Đất trên

+22
Nằm trong một con hẻm nhỏ giữa lòng TP.HCM, M.Casa House mang đến cảm giác bình yên hiếm có. Trên khu đất 6 x 20 m bị bao quanh bởi bê tông dày đặc, Hinzstudio tạo nên một không gian sống mộc mạc, ấm áp, tái hiện tinh thần nhà truyền thống Việt Nam bằng ngôn ngữ đương đại.
Với mong muốn có nơi chốn an yên cho gia đình trẻ, công trình ưu tiên sự thông thoáng, ánh sáng tự nhiên và cảm giác kết nối với thiên nhiên – những giá trị đang dần mất đi trong nhịp sống đô thị.

Thông tin dự án

Tên công trình: M.Casa House
Địa điểm: TP.HCM, Việt Nam
Diện tích: 245 m²
Đơn vị thiết kế: Hinzstudio
Năm hoàn thành: 2025
Nhiếp ảnh: Quang Trần

Ý tưởng thiết kế M.Casa House

Lấy cảm hứng từ cấu trúc nhà truyền thống Việt Nam, M.Casa House tái hiện các yếu tố quen thuộc như sân trong – hiên – lối đi bên hông – mái dốc. Tuy nhiên, Hinzstudio không sao chép nguyên bản mà diễn giải bằng tinh thần tối giản, mạch lạc và phù hợp với đô thị.
KTS muốn tạo ra một ngôi nhà “khiêm tốn nhưng ấm áp”, nơi ánh sáng, gió và vật liệu tự nhiên trở thành chủ đạo. Đây không chỉ là không gian ở mà còn là nơi nuôi dưỡng ký ức về nếp nhà xưa, kết nối thế hệ trẻ với những giá trị bền vững của quá khứ.

M.Casa House - nhà Việt xưa giữa lòng Sài Gòn _ Ảnh: Quang Trần

Giải pháp kiến trúc nổi bật M.Casa House

Bố cục ngôi nhà lùi trước và lùi sau tạo nên hai lớp đệm quan trọng, giúp giảm bức xạ nhiệt và hạn chế tiếng ồn từ bên ngoài. Nhờ đó, không khí trong nhà luôn nhẹ và sạch hơn – một cảm giác hiếm gặp trong những khu phố dày đặc công trình bê tông.
Các yếu tố quen thuộc của kiến trúc Việt như hiên, hành lang và mái dốc được tái hiện bằng một ngôn ngữ đương đại. Vật liệu tự nhiên như gỗ, gạch, bê tông mộc được sử dụng có chủ đích, vừa giữ chất mộc mạc vốn có, vừa mang lại nét hiện đại, tinh giản. Sự kết hợp này giúp công trình trở thành cầu nối giữa truyền thống và đời sống đô thị hôm nay.

Vật liệu truyền thống xưa quen thuộc _ Ảnh: Quang Trần

Không gian chức năng M.Casa House

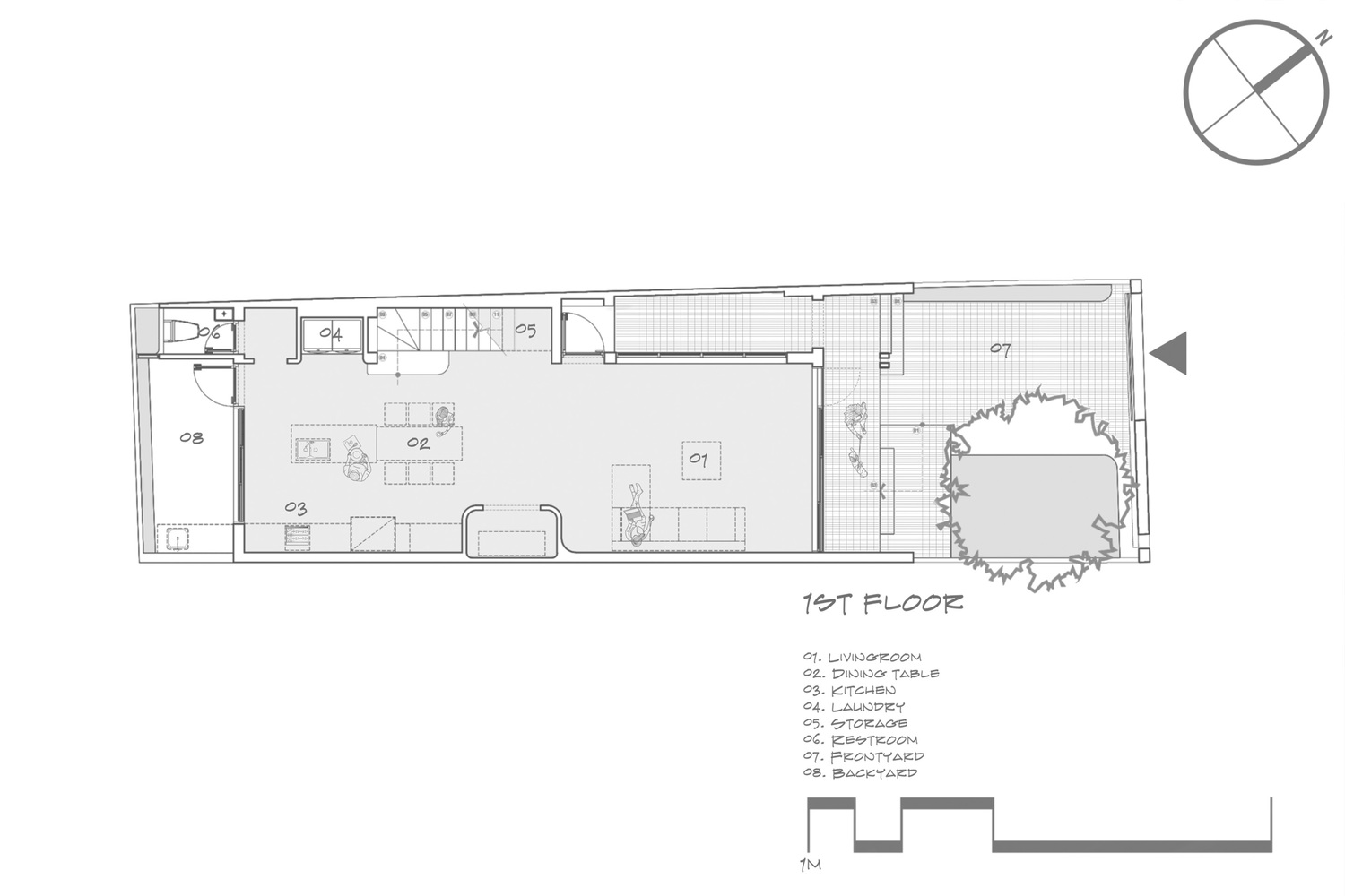
Tầng trệt – Không gian kết nối

Phòng khách và bếp được tổ chức theo dạng mở, loại bỏ mọi ranh giới cứng để ánh sáng, gió và các hoạt động thường ngày liền mạch với nhau. Tại trung tâm tầng này, bàn thờ được đặt vào một vị trí tĩnh nhưng không tách biệt, giữ được sự trang trọng cần có mà vẫn hòa vào đời sống của gia đình trẻ.

Tầng hai – Không gian gia đình

Hai phòng ngủ được bố trí ở hai đầu nhà, vừa đảm bảo sự riêng tư, vừa giúp tối ưu thông gió chéo. Ở giữa là khoảng sinh hoạt chung – nơi không gian sinh hoạt - vui chơi của trẻ. Nó hoạt động như một “sân trong bên trong”, một điểm nghỉ mềm giữa hai khối chức năng.

Tầng ba – Riêng tư và tĩnh lặng

Đây là nơi đặt phòng ngủ chính, góc làm việc và khu thư giãn nhỏ – những không gian dành cho sự tập trung và hồi phục năng lượng. KTS tinh tế mở những ô nhìn hướng về các mảng xanh, để mỗi buổi sáng ánh sáng dịu len vào phòng, còn buổi tối là cảm giác yên bình tách khỏi nhịp sống đô thị.

Tầng trệt M.Casa House _ Ảnh: Quang Trần
M.Casa House không chỉ là nơi để ở, mà còn là một câu chuyện về sự chậm rãi và bình yên trong đời sống đô thị. Bằng cách tái hiện tinh thần nhà Việt trong hình thái mới, Hinzstudio tạo nên một công trình bền vững về cảm xúc: đơn giản nhưng tinh tế, hiện đại nhưng đậm chất truyền thống, nhỏ gọn nhưng giàu chiều sâu.





Nguồn: Archdaily

Dành cho bạn

Bình luận (0)


banner

banner
banner
banner
logo

CÔNG TY TNHH TIN HAY NHÀ ĐẤT

Giấy phép: MST: 0315812728

Email: info@tinhaynhadat.vn

Điện thoại: 0828636678

Địa chỉ: 23 Cửu Long, Phường Tân Sơn Hòa, TP.HCM

Chịu trách nhiệm nội dung: CÔNG TY TNHH TIN HAY NHÀ ĐẤT

hợp tác truyền thông và quảng cáo

Email: info@tinhaynhadat.vn

Điện thoại: 0828636678

Địa chỉ: 23 Cửu Long, Phường Tân Sơn Hòa, TP.HCM

(Để tránh hiểu lầm là spam xin hãy nêu rõ chi tiết khi liên hệ chat lần đầu)