Biệt thự Yume House – Kiến trúc đường chéo mở tầm nhìn về Thái Bình Dương

Admin

Tin Hay Nhà Đất trên

+9

Tọa lạc trên bán đảo Papagayo – vùng đất sở hữu vẻ đẹp nguyên sơ bậc nhất Costa Rica, Yume House được thiết kế như một nơi trú ẩn sang trọng giữa thiên nhiên hoang dã. Công trình ghi dấu bởi hình khối táo bạo, trục không gian chéo đầy kịch tính và cách KTS tổ chức ánh sáng, gió, tầm nhìn để đưa biển Thái Bình Dương len vào từng khoảng sống.

Sự hài hòa giữa kiến trúc hiện đại và địa hình dốc tự nhiên biến Yume House thành trải nghiệm sống "trong – ngoài" liền mạch, nơi đường chân trời trở thành một phần của nội thất.

Thông tin dự án

  • Tên công trình: Biệt thự Yume House
  • Địa điểm: Bán đảo Papagayo, Costa Rica
  • Diện tích: 1.382 m²
  • Đơn vị thiết kế: QBO3 Arquitectos
  • Năm hoàn thành: 2023
  • Nhiếp ảnh: Mavix, Depth.Lens

Ý tưởng thiết kế Yume House

Yume House được xây dựng dựa trên mong muốn tạo nên một nơi ở cao cấp nhưng vẫn kết nối sâu với thiên nhiên bản địa. Từ địa hình dốc hướng biển, KTS khai thác tối đa tầm nhìn bằng cách sử dụng một trục chéo xuyên suốt mặt bằng – đóng vai trò như “xương sống” tổ chức toàn bộ công trình.
Đường chéo không phải chủ đích tạo hình đơn thuần; nó xuất phát từ cách con người tương tác với cảnh quan: mở góc nhìn, dẫn lối ánh sáng, và tạo điểm nhấn động học cho không gian. 

Yume House tại Costa Rica của QBO3 Arquitectos _ Ảnh: Mavix, Depth.Lens.

Giải pháp kiến trúc nổi bật Yume House

Nằm ở trục đường chéo xuyên suốt toàn bộ mặt bằng. Đường chéo này đóng vai trò như xương sống của thiết kế, vừa định hình vị trí các khối chức năng, vừa tạo nên bố cục khác biệt cho công trình. Thay vì san phẳng địa hình, KTS lựa chọn để công trình ôm theo sườn dốc. Tầng dưới tiếp đất chắc chắn, trong khi tầng trên mở rộng tối đa về phía đường chân trời.
Không gian sinh hoạt chung được tổ chức theo trục mở 180° về phía biển, tạo nên chuỗi phòng khách – bếp – phòng ăn liền mạch. Khoảng đua rộng về phía trước làm không gian như “lơ lửng trên mặt biển”, đồng thời mang ánh sáng và gió tự nhiên chảy xuyên suốt cả ngày.

Yume House - Công trình ôm theo sườn dốc, trục mở hướng ra biển _ Ảnh: Mavix, Depth.Lens.

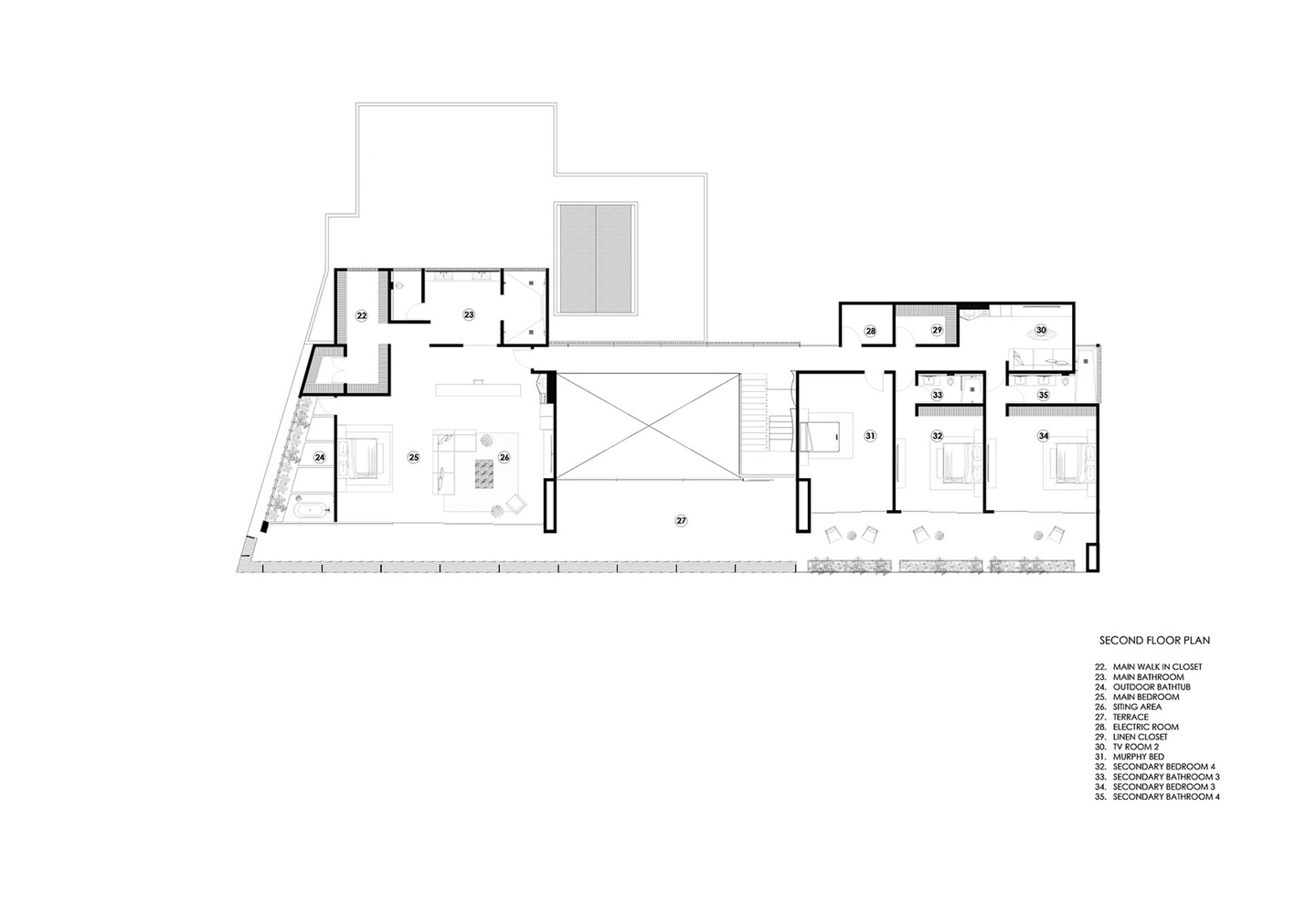
Không gian chức năng Yume House

Khối nhà chính

Kiến trúc sư tổ chức công trình theo hai tầng, xoay toàn bộ khối nhà theo trục chéo để mở tối đa hướng biển. Các không gian được xếp lệch có chủ ý nhằm tạo nhịp điệu thị giác và giảm cảm giác “khối đặc” trên địa hình dốc.

Phòng khách – bếp – phòng ăn

Dải không gian liên hoàn kéo dài 17 mét – điểm nhấn lớn nhất của dự án. Khoảng mở này được thiết kế như một khung cảnh liên tục, nơi mặt biển trở thành phông nền tự nhiên cho mọi hoạt động sinh hoạt.

Phòng ngủ

Sử dụng cửa kính kịch trần và ban công rộng để đưa ánh sáng và cảnh quan vào phòng ngủ mà không phá vỡ sự riêng tư. Mỗi phòng đều có một “góc tĩnh” hướng về biển, đúng tinh thần nghỉ dưỡng của ngôi nhà.

Ban công – sân ngoài trời

Hệ sân và ban công đóng vai trò là vùng đệm giữa kiến trúc và thiên nhiên. Đây là nơi chủ nhân có thể trải nghiệm trọn vẹn khoảnh khắc hoàng hôn Thái Bình Dương – yếu tố cảm xúc mà chúng tôi luôn ưu tiên trong thiết kế.

Không gian chuyển tiếp nhẹ nhàng, làm mờ ranh giới trong – ngoài _ Ảnh: Mavix, Depth.Lens.
Yume House là minh chứng cho một triết lý thiết kế: kiến trúc không đứng tách rời thiên nhiên mà đồng hành và tôn vinh nó. Từ trục đường chéo táo bạo đến tầm nhìn mở trọn biển rộng, công trình mang đến trải nghiệm sống sang trọng, tinh tế nhưng vẫn đầy thiền tính.
Đây không chỉ là một căn biệt thự – mà là khung cảnh sống, nơi biển cả trở thành một phần của ngôi nhà.

Nguồn: Archdaily

Dành cho bạn

Bình luận (0)


banner

banner
banner
banner
logo

CÔNG TY TNHH TIN HAY NHÀ ĐẤT

Giấy phép: MST: 0315812728

Email: info@tinhaynhadat.vn

Điện thoại: 0828636678

Địa chỉ: 23 Cửu Long, Phường Tân Sơn Hòa, TP.HCM

Chịu trách nhiệm nội dung: CÔNG TY TNHH TIN HAY NHÀ ĐẤT

hợp tác truyền thông và quảng cáo

Email: info@tinhaynhadat.vn

Điện thoại: 0828636678

Địa chỉ: 23 Cửu Long, Phường Tân Sơn Hòa, TP.HCM

(Để tránh hiểu lầm là spam xin hãy nêu rõ chi tiết khi liên hệ chat lần đầu)