Antriya House – Ngôi nhà thô mộc phủ xanh giữa ngoại ô Hyderabad

Admin

Tin Hay Nhà Đất trên

+10

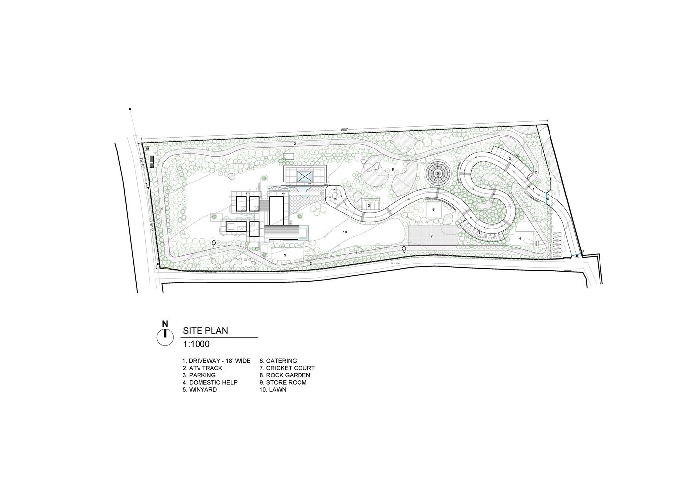
Nằm ở vùng ven Hyderabad (Ấn Độ), Antriya House là minh chứng cho cách kiến trúc thô mộc có thể trở nên sống động khi hòa mình vào thiên nhiên. Từ một khu đất chỉ có duy nhất một cây bồ đề, công trình nay trở thành tổ ấm ba thế hệ – nơi cây xanh, ánh sáng và vật liệu địa phương cùng tạo nên bản giao hưởng của tự nhiên và con người.

THÔNG TIN DỰ ÁN
  • Tên công trình: Antriya House
  • Diện tích: ~1.300m²
  • Đơn vị thiết kế: 23 Degrees Design Shift
  • Nhiếp ảnh: Shamanth Patil
  • Địa điểm: Ngoại ô Hyderabad, Ấn Độ
  • Năm hoàn thành: Cập nhật (nếu có)

Ý tưởng thiết kế Antriya House

Câu chuyện khởi đầu từ mong muốn của hai anh em – chủ nhân ngôi nhà – về một không gian nghỉ dưỡng chung cho ba thế hệ. Họ tìm kiếm một “ngôi nhà sống” thay vì “ngôi nhà ở” – nơi hơi thở của đất, gió và ánh sáng trở thành linh hồn của kiến trúc.Từ đó, 23 Degrees Design Shift đã kiến tạo nên một khối nhà liền mạch, vừa thô ráp vừa tinh tế, với triết lý:“ Brutalism nhưng mềm mại như thiên nhiên.”

Antriya House | Ảnh: Shamanth Patil.

Giải pháp kiến trúc nổi bật Antriya House

Khác với vẻ lạnh lùng thường thấy của phong cách thô mộc, Antriya House được bao phủ bởi cây xanh ở mọi tầng cao. Các mảng bê tông và đá thô được điểm xuyết dây leo, cây dừa, cùng giếng trời mở giúp điều hòa khí hậu tự nhiên.
Hệ mái hiên đua rộng và bãi cỏ xung quanh tạo lớp làm mát thụ động, giúp ngôi nhà luôn thoáng mát giữa khí hậu ẩm của Hyderabad. Từng mảng tường, lối đi, mặt nước đều được sắp đặt có chủ đích để ánh sáng và gió tự nhiên luân chuyển xuyên suốt.

Antriya House – mảng bê tông thô được làm mềm bởi dây leo và ánh nắng | Ảnh: Shamanth Patil.

Không gian chức năng Antriya House

Không gian bên trong được làm theo trục mở và kết nối thiên nhiên, tạo hành trình trải nghiệm mỗi bước chân đều hòa mình vào cây xanh, ánh sáng và không khí – từ hiên ngoài đến phòng khách, hồ bơi và các khu sinh hoạt chung.
  • Tầng trệt – Hiên & phòng khách: Bước vào bên trong trần cao 4,5m mở ra cảm giác rộng thoáng, nơi phòng khách mở kết nối trực tiếp với hiên ngoài và hồ bơi. Hệ cửa kính trượt linh hoạt cho phép không gian mở rộng hay thu gọn, đồng thời tối ưu luồng gió và ánh sáng tự nhiên. Cầu thang điêu khắc được đặt như một điểm nhấn trung tâm, vừa là kết cấu chức năng, vừa là một tác phẩm nghệ thuật.
  • Hồ bơi & khu nghỉ dưỡng riêng: Hồ bơi được thiết kế riêng tư, bao quanh bởi dây leo rủ, mang lại cảm giác nghỉ dưỡng và thân mật. Các tấm kính và hiên nhô ra giúp ánh sáng chiếu vào theo nhiều góc độ, biến một không gian nghỉ dưỡng trở nên sống động giữa thiên nhiên.
  • Khu vực sinh hoạt phụ & sân vườn: Các không gian phụ như lối đi trên cao và khu vườn được bố trí quanh khối nhà, với cây xanh trải dài từ tầng trệt đến mái, xóa nhòa ranh giới trong – ngoài, tạo cảm giác sống động, gần gũi với thiên nhiên. Một hồ nước đầy lá súng ôm trọn khối nhà, tạo hiệu ứng “ngôi nhà nổi giữa rừng xanh”.

Không gian phòng khách mở kết nối hiên ngoài và thiên nhiên | Ảnh: Shamanth Patil.


Antriya House_ góc nghỉ thô mộc, xanh mát | Ảnh: Shamanth Patil.
Antriya House không chỉ là nơi ở, mà là sự kết tinh giữa kiến trúc – khí hậu – cảm xúc. Ở đó, chủ nghĩa thô mộc được tái định nghĩa: không lạnh lẽo, mà chan hòa và gần gũi. Một tổ ấm sống động, nơi mỗi ngày là một cuộc đối thoại giữa con người và thiên nhiên.







Nguồn: Wallpaper

Dành cho bạn

Bình luận (0)


banner

banner
banner
banner
logo

CÔNG TY TNHH TIN HAY NHÀ ĐẤT

Giấy phép: MST: 0315812728

Email: info@tinhaynhadat.vn

Điện thoại: 0828636678

Địa chỉ: 23 Cửu Long, Phường Tân Sơn Hòa, TP.HCM

Chịu trách nhiệm nội dung: CÔNG TY TNHH TIN HAY NHÀ ĐẤT

hợp tác truyền thông và quảng cáo

Email: info@tinhaynhadat.vn

Điện thoại: 0828636678

Địa chỉ: 23 Cửu Long, Phường Tân Sơn Hòa, TP.HCM

(Để tránh hiểu lầm là spam xin hãy nêu rõ chi tiết khi liên hệ chat lần đầu)