FYRTORNET HIGH-RISE BUILDING | Công trình cao tầng bằng gỗ mang tính bền vững

Admin

Tin Hay Nhà Đất trên

+16

Tòa nhà văn phòng Fyrtornet High-Rise Building, biểu tượng mới của kiến trúc bền vững tại Bắc Âu. Với hình khối vươn cao mạnh mẽ và lớp vỏ gỗ đỏ đặc trưng, công trình mở ra một góc nhìn khác về tương lai của các đô thị xanh. Tọa lạc tại quảng trường Hyllie – cửa ngõ đón khách từ lục địa châu Âu, Fyrtornet ẩn sau vẻ ngoài nổi bật ấy là một câu chuyện về vật liệu, con người và sự kết nối đô thị đang chờ được khám phá.


THÔNG TIN DỰ ÁN:
  • Tên công trình: Fyrtornet High-Rise Building
  • Địa điểm: Malmö, Thụy Điển
  • Quy mô: 9.020 m²
  • Đơn vị thiết kế: Wingårdhs
Toàn cảnh Fyrtornet High-Rise Building – điểm nhấn kiến trúc tại cửa ngõ Malmö | Ảnh: Archdaily.
Toàn cảnh Fyrtornet High-Rise Building – điểm nhấn kiến trúc tại cửa ngõ Malmö | Ảnh: Archdaily.

Ý tưởng thiết kế Fyrtornet High-Rise Building

Fyrtornet High-Rise Building được định hình như một “ngọn hải đăng” giữa đô thị – biểu tượng chào đón và kết nối. Lấy cảm hứng từ vai trò là điểm nhấn đầu tiên khi đến Malmö, công trình mang sắc đỏ gỗ falu truyền thống, vừa gợi nhớ văn hóa Bắc Âu, vừa tạo nên dấu ấn thị giác mạnh mẽ.
Không chỉ là một tòa nhà cao tầng, Fyrtornet còn đóng vai trò hoàn thiện tổng thể quảng trường Hyllie, góp phần định hình không gian đô thị hiện đại, mở và giàu tính tương tác. Ý tưởng xuyên suốt là tạo nên một công trình không chỉ để làm việc, mà còn để gặp gỡ, giao lưu và trải nghiệm.

Hình khối tháp gỗ đỏ lấy cảm hứng từ “ngọn hải đăng” | Ảnh: Archdaily.
Hình khối tháp gỗ đỏ lấy cảm hứng từ “ngọn hải đăng” | Ảnh: Archdaily.

Giải pháp kiến trúc Fyrtornet High-Rise Building

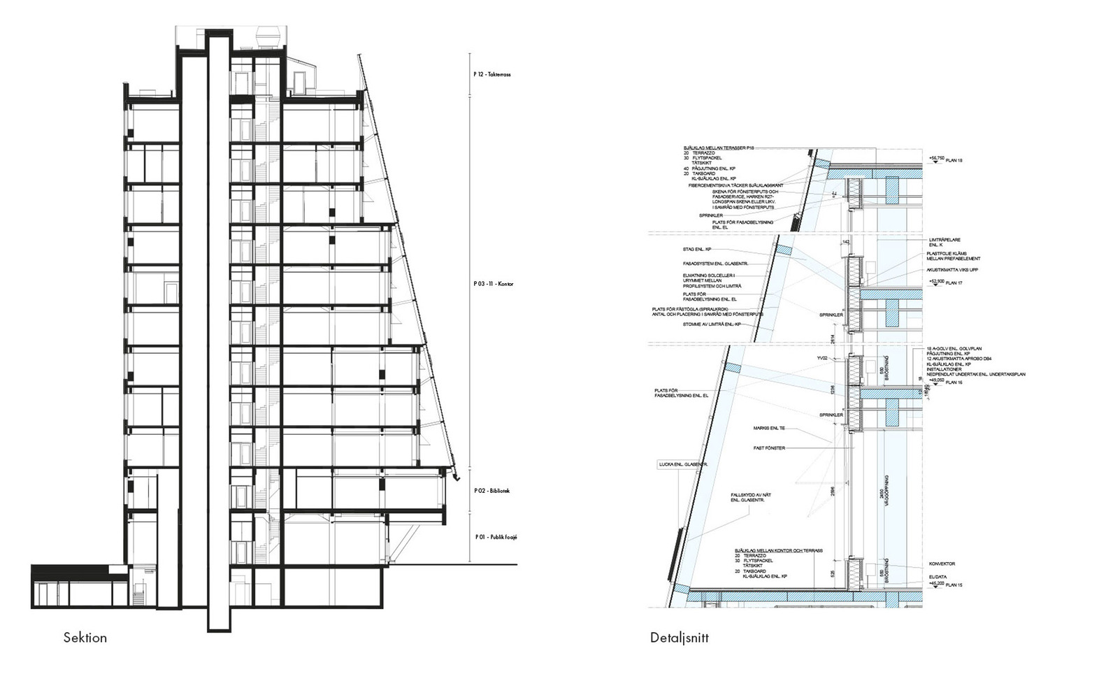
Điểm nổi bật nhất của Fyrtornet chính là việc sử dụng kết cấu gỗ hoàn toàn cho một công trình cao tầng – đưa nó trở thành tòa nhà văn phòng bằng gỗ cao nhất Scandinavia. Giải pháp này không chỉ giảm đáng kể lượng khí thải carbon mà còn mang lại không gian nội thất ấm áp, gần gũi.
Mặt đứng công trình được xử lý linh hoạt với hai ngôn ngữ chính: Hai mặt sử dụng gỗ cedar dạng shingles màu đỏ, tạo chiều sâu và bản sắc. Hai mặt còn lại là hệ kính hai lớp, phản chiếu cảnh quan đô thị và tối ưu ánh sáng tự nhiên
Ngoài ra, các giải pháp bền vững được tích hợp đồng bộ như: Tấm pin năng lượng mặt trời trên mặt đứng kính; hệ thống địa nhiệt phục vụ vận hành; Thiết kế thông gió và chiếu sáng tự nhiên.
Tất cả tạo nên một công trình hiệu quả năng lượng và thân thiện môi trường.

Sự kết hợp giữa gỗ cedar đỏ và mặt dựng kính hiện đại | Ảnh: Archdaily.
Sự kết hợp giữa gỗ cedar đỏ và mặt dựng kính hiện đại | Ảnh: Archdaily.

Không gian chức năng Fyrtornet High-Rise Building

Fyrtornet được tổ chức như một hệ sinh thái không gian đa tầng, nơi công cộng và riêng tư đan xen linh hoạt.

Tầng trệt – Không gian cộng đồng mở

Tầng trệt là một sảnh công cộng rộng mở, được ví như “phòng khách của thành phố”. Không gian này kết nối trực tiếp với khu thương mại, tạo nên sự giao thoa giữa người dân, khách vãng lai và nhân viên văn phòng.

Không gian sảnh công cộng tại tầng trệt Fyrtornet | Ảnh: Archdaily.
Không gian sảnh công cộng tại tầng trệt Fyrtornet | Ảnh: Archdaily.

Tầng 2 – Khu vực thư viện

Một thư viện mở cửa đến tối, với các phòng đọc hướng ra quảng trường. Đây là nơi lý tưởng để dừng lại, thư giãn và tương tác với cộng đồng.

Thư viện mở hướng ra quảng trường Hyllie | Ảnh: Archdaily.
Thư viện mở hướng ra quảng trường Hyllie | Ảnh: Archdaily.

Các tầng văn phòng

Không gian làm việc được thiết kế với nội thất gỗ ấm áp, kết hợp các sân hiên kính cao ba tầng, giúp đưa ánh sáng và không khí tự nhiên vào sâu bên trong công trình.

Không gian văn phòng gỗ bên trong Fyrtornet | Ảnh: Archdaily.
Không gian văn phòng gỗ bên trong Fyrtornet | Ảnh: Archdaily.

Sân thượng – Vườn chung

Trên cùng là khu vườn mái mở, nơi người sử dụng có thể tận hưởng tầm nhìn rộng lớn ra eo biển Öresund – một điểm nhấn thư giãn giữa môi trường làm việc đô thị.

Vườn mái Fyrtornet với tầm nhìn ra eo biển Öresund | Ảnh: Archdaily.
Vườn mái Fyrtornet với tầm nhìn ra eo biển Öresund | Ảnh: Archdaily.

Kết luận

Fyrtornet High-Rise Building là minh chứng rõ nét cho xu hướng kiến trúc bền vững và nhân văn trong bối cảnh đô thị hiện đại. Không chỉ gây ấn tượng bởi chiều cao và vật liệu, công trình còn tạo ra giá trị lâu dài thông qua việc kết nối con người, không gian và môi trường.

Nguồn: Archdaily

Dành cho bạn

Bình luận (0)


banner

banner
banner
banner
logo

CÔNG TY TNHH TIN HAY NHÀ ĐẤT

Giấy phép: MST: 0315812728

Email: info@tinhaynhadat.vn

Điện thoại: 0828636678

Địa chỉ: 23 Cửu Long, Phường 2, Tân Bình, TP.HCM

Chịu trách nhiệm nội dung: Nguyễn Viết Khim

hợp tác truyền thông và quảng cáo

Email: info@tinhaynhadat.vn

Điện thoại: 0828636678

Địa chỉ: 23 Cửu Long, Phường 2, Tân Bình, TP.HCM

(Để tránh hiểu lầm là spam xin hãy nêu rõ chi tiết khi liên hệ chat lần đầu)